Diese Einfamilienhäuser mit Stellplätzen am Neubadrain in Binningen können voraussichtlich im Frühjahr 2023 bezogen werden.
Diese Einfamilienhäuser mit Stellplätzen am Neubadrain in Binningen können voraussichtlich im Frühjahr 2023 bezogen werden.
Paid Post

Stadtnahes Wohnen in modernen Häusern

Im Herzen von Binningen entstehen fünf hochwertige Einfamilienhäuser mit grosszügigen Gärten und Autounterständen. Durch die abgewandte Orientierung entsteht maximale Privatheit.

Ausrichtung

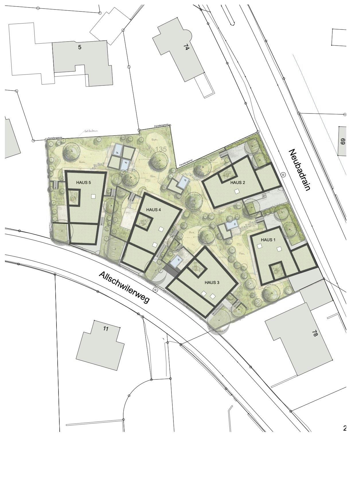
​Die Häuser sind alle freistehend. Die Zapfenform der Volumen entspricht der Hanglage, Aussicht und Parzellenform. Die Orientierung der Volumen wie auch die Öffnungen sind so konzipiert, dass grösstmögliche Privatsphäre entsteht. Die Gebäude am Allschwilerweg sind um ein Geschoss höher versetzt, als die Gebäude am Neubadrain. Somit wird allen Einheiten der freie Blick über die Landschaft ermöglicht. Die Erschliessung der Parzellen der Häuser 1 und 2 erfolgt über den Neubadrain, für die Häuser 3, 4 und 5 über den Allschwilerweg.

Jedes Haus bietet einen freien Blick über die Landschaft: Grundrisse.
Jedes Haus bietet einen freien Blick über die Landschaft: Grundrisse.

​Häuser

​Alle Häuser verfügen über ein Obergeschoss, ein Erdgeschoss mit überhohem Wohnraum als Split-Level gefolgt von einem Untergeschoss mit grosszügigen Räumen, welche durch ein Atrium belichtet werden. Jedes Haus verfügt mindestens über 200 m2 Wohnfläche und ca. 400 m2 Grundstücksfläche. Die Besonderheit der Häuser liegt neben dem überhohen Wohnraum beim innenliegenden Atrium. Dieser ermöglicht die Natur sozusagen ins Haus zu holen. Dadurch entstehen lichtdurchflutete, spannende Durchblicke und Räumlichkeiten. Im Erdgeschoss entstehen durch Einschnitte im Volumen grosszügige gedeckte Sitzplätze, welche den ebenerdigen Zugang zum Garten ermöglichen.

Jedes Haus verfügt über einen Stammparkplatz und einen Besucherparkplatz, die durch Unterstände gedeckt sind.

Die Grundrissvariabilität ermöglicht neben der individuellen Raumaufteilung, auch ein Büro oder eine Praxis vom restlichen Wohnbereich abzutrennen.

Durch das grosszügige Atrium entsteht ein lichtdurchfluteter Wohnraum.
Durch das grosszügige Atrium entsteht ein lichtdurchfluteter Wohnraum.

Garten

Die rhythmische Bepflanzung des urbanen Raums bei der Strasse wird durch eine lockere, schwungvolle Bepflanzung zwischen den Häusern abgelöst. Das Zusammenspiel von Rasenflächen und Stauden bilden eine harmonische Einheit, welche durch Bäume und Sträucher ergänzt wird, um vor Einblicken zu schützen.

Über gedeckte Aussensitzplätze gelangt man in den privaten Garten, welcher das gesamte Haus umschliesst. 

Die gedeckten, sonnigen Gartensitzplätze bieten Ausblick, Freiraum und gewährleisten jedem Haus seine Intimsphäre. Jedes Haus verfügt neben dem gedeckten Sitzplatz noch über einen weiteren ungedeckten Sitzplatz auf einem anderen Niveau. Die gedeckten Aussenbereiche ermöglichen eine wetterunabhängige und ganzjährige Nutzung. 

​Parkplätze

Jedes Haus verfügt über einen Stammparkplatz und einen Besucherparkplatz, welche durch Autounterstände gedeckt werden.

Paid Post

Dieser Beitrag wurde von Commercial Publishing in Zusammenarbeit mit Ferrara Architekten AG und Ferrara Consulting GmbH erstellt. Commercial Publishing ist die Unit für Content Marketing, die im Auftrag von 20 Minuten und Tamedia kommerzielle Inhalte produziert.

Ferrara Consulting GmbH

Waldeckweg 35,
4102 Binningen
Tel. 078 866 90 68 (Herr Giovanni Ferrara)
giovanni.ferrara@ferrara-architekten.ch
www.ferrara-consulting.ch